Om
ECO-serien er pålitelige og små batteribackup for bruk med tilgangssystemer, låsesystemer og andre belastninger. Batteriets sikkerhetskopier har kontrollert lading* som forhindrer at batteriene overlades, noe som forlenger levetiden betydelig.
Notat
Enheten skal installeres på vegg, innendørs.
Temperaturen skal være 15 - 30 °C.
Nettspenning skal være bortkoblet under installasjon.
Kun personer med godkjenning skal installere og vedlikeholde.
Se installasjonsfilm
Navn, artikkelnummer og e-nummer
Navn | Artikkelnummer | E-nummer |
|---|---|---|
ECO 12V 10A M | ME01C10212P100 | 52 135 19 |
ECO 12V 5A S | SM01C10212P050 | 52 136 50 |
ECO 24V 10A M | ME01C10224P100 | 52 135 22 |
ECO 24V 3A S | SM01C10224P030 | 52 135 16 |
ECO 24V 5A M | ME01C10224P050 | 52 135 21 |
Revisjoner og om dette dokumentets utgave
Gjeldende og nyeste utgave av dette dokumentet er tilgjengelig på www.milleteknik.se.
Dette dokumentets gyldighet kan ikke garanteres da ny utgave publiseres uten forvarsel.
Instruksjoner for bruk på svensk i original.[1].
Bruksanvisning, tekniske data og oversettelser av disse kan inneholde feil. Det er alltid installatørens ansvar å påse at produktet installeres på en sikker måte.
Symboler
Symboler | Betegnelse | Forklaring |
|---|---|---|
![]() | Advarsel | Fare for elektrisk støt, feil installasjon eller varme overflater. Vises i noen manualer |
![]() | Legg merke til | Brukes til tilleggsinformasjon som tydeliggjør teksten. |
![]() | Forsiktighet/Viktig | Indikerer risikoen for skade på utstyret eller funksjonsfeil. Brukes også til informasjon som er viktig, men ikke sikkerhetsrelatert. |
![]() | Tips | Viser praktiske råd eller snarveier for installasjon, drift eller service. |
![]() | CE-merking | Produktet er i samsvar med gjeldende EU-direktiver og harmoniserte standarder. |
![]() | Les håndboken | Les bruksanvisningen før installasjon og service. |
![]() | Må ikke kastes i husholdningsavfall | Produktet er omfattet av WEEE-direktivet og må ikke kastes sammen med husholdningsavfall, det må resirkuleres og leveres til et resirkuleringssenter. |
Resirkulering | Emballasje, produkter og andre materialer som ikke inneholder elektronikk, må resirkuleres i samsvar med lokale miljøforskrifter. |
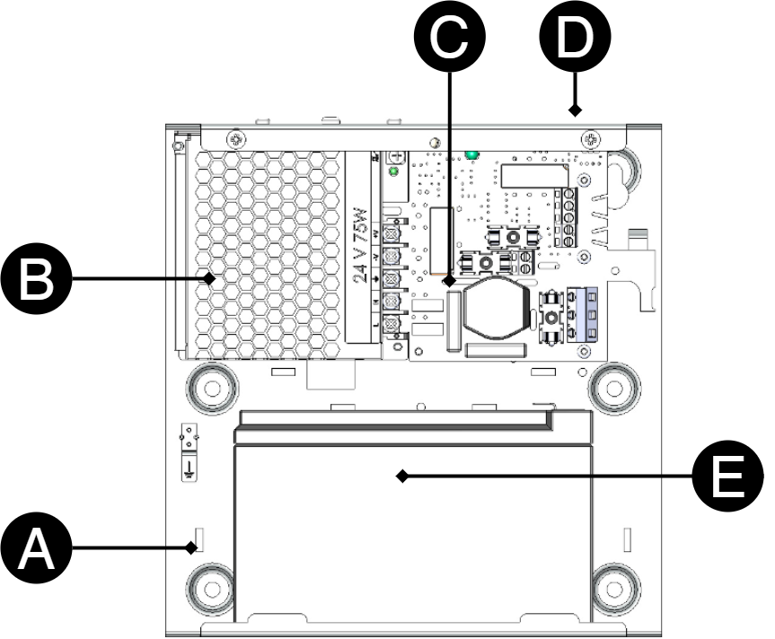
Komponentoversikt
Komponentoversikt ECO 12V 10A M, ECO 24V 5A M, ECO 24V 10A M


Venstre: ECO S. Høyre ECO M.
Bokstav | Forklaring |
|---|---|
A | Skap i pulverlakkert stålplate. |
B | Nettaggregat, sted og type varierer med konfigurasjon. |
C | Hovedkort. |
D | Kabelgjennomføringer. |
E | Plass for batterier. |
Innkapsling
Montering - veggmontering
Produktene skal monteres på en stabil vegg eller monteringsplate med tilstrekkelig bæreevne for vekten av kabinettet, inkludert batterier.
Kabinettet er montert vertikalt.
Bruk fire skruer med en diameter på 4-5 mm, avhengig av underlaget.
Anbefalt avstand mellom skruehode og vegg skal være 1,5-2 mm.
For montering på gips, bør veggankere eller ekspansjonsbolter brukes.
Ved montering på betong eller murstein brukes dybler eller tilsvarende feste.
For god ventilasjon bør det være minst 100 mm ledig plass over og på sidene av kabinettet.
Enheten skal monteres i en behagelig arbeidshøyde, normalt mellom 1,4 og 1,8 m over gulvet.
Unngå plassering i direkte sollys, nær varmekilder eller i miljøer med høy luftfuktighet eller støv.
For utendørs bruk skal bare kabinetter med spesifisert IP-klasse for utendørs bruk brukes.
Installasjonen skal utføres i samsvar med gjeldende installasjonsregler og av en kompetent installatør.
Montering på vegg
Bruk fire skruer som egner seg for veggen til å sette opp kapslingen.
Avstand mellom skruehode og vegg bør være 1,5–2 mm.
Det skal helst være 100 mm luftspalte rundt enheten.


Venstre: S innhegning. Høyre: M kapsling.
Batterier – sette i og koble til
Tilkobling av batteri ECO S 12 V
Obs
Kontroller batterispenningen når du slår på. Før installasjon må spenningen til hvert enkelt batteri måles. Koble aldri til to batterier hvis terminalspenning avviker med mer enn 0,3 V (maks 0,4 V). For stor spenningsforskjell kan indikere et skadet batteri og føre til ytelsesforringelse, batteriskade eller overoppheting med risiko for brann.


Venstre ECO 12V med 1 batteri. Høyre ECO 12 V med to batterier.
12 V med batteri: Batterikabler fra hovedkort kobles til batteri pluss- og minuspol. Batterisikring er på kretskortet.
12 V med to batterier: Batterikabler fra hovedkort kobles til batteri pluss og minuspol på hvert batteri. Sikringer må kobles til hver batteripol. En sikring på minuspoler og en sikring på plusspoler.
Notat
Sikringer som følger med enheten i en pose, skal ikke brukes når 1 batteri brukes.
Tilkobling av batterier, 24V
Obs
Kontroller batterispenningen når du slår på. Før installasjon må spenningen til hvert enkelt batteri måles. Koble aldri til to batterier hvis terminalspenning avviker med mer enn 0,3 V (maks 0,4 V). For stor spenningsforskjell kan indikere et skadet batteri og føre til ytelsesforringelse, batteriskade eller overoppheting med risiko for brann.
Nettspenningen bør være utkoblet ved innkobling av batterier
Skyv batterier inn fra siden med batteripolene mot midten. Bruk bare nye batterier ved installasjon og batteriskifte.
Koble til sikringer på batterier. Koble rød kabel til + (pluss) og svart kabel til - (minus).
Koble på kabler fra batteribackup på batterier. Koble rød kabel til + (pluss) og svart kabel til - (minus).

Bildet viser hvordan kabler skal kobles.
CEO3-ECO
Hovedkort - beskrivelse
Kortet har flere tilkoblinger, nedenfor beskrives de som trengs for å koble enheten.
Koble til i denne rekkefølgen
For å minimere risikoen for feil som kan oppstå i forbindelse med kortslutning, skal tilkoblinger til hovedkort skje i denne rekkefølgen.


Nr | Forklaring |
|---|---|
1 | Koble til alarm. |
2 | Koble til last. |
3 | Koble til batterier. |
4 | Koble til strømnett. |
Koble til alarm
Koble til alarm på terminal P3.

P3:4-6 | Forklaring |
|---|---|
Sumalarm | |
P3:4 | NC |
P3:5 | Com |
P3:6 | NO |
Koble til last

Nummer på kretskort | Forklaring |
|---|---|
P2:1 | Tilkobling for last 1 +. |
P2:2 | Tilkobling for last 1 -. |
P2:3 | Tilkobling for last 2 +. |
P2:4 | Tilkobling for last 2 -. |
Maksstrøm
Maksimal strøm må ikke overskrides. Maksstrøm er angitt på navneskilt på enheten.
Fare
Nettspenningen må kobles fra ved arbeid med strippete kabler. Det er installatørens ansvar å sørge for at riktig kompetanse er tilgjengelig for å koble 230 V til aggregatet. Maks kabelareal er 4 mm2
Koble strømnett til hovedkort med terminalblokk
Sikre F og N med buntebånd.
Viktig
Nettledninger må holdes atskilt fra andre ledninger for å unngå EMC-forstyrrelser.
Viktig
beskyttende jorden (PE) skal kobles til PE-terminalen på hovedkortet. Hovedkortet er jordet via monteringspunktene i kabinettet, noe som sikrer riktig potensiell utjevning mellom PCB og kabinett. Dekselet er også jordet gjennom jordkabel/jordflette mellom deksel og kabinett for å opprettholde kontinuitet og EMC-funksjon

Koble strømnettkablene til terminalblokken før denne settes tilbake på hovedkortet. Sikre F og N med buntebånd.
Bokstav | Forklaring |
|---|---|
F | Fase |
N | Null |
PE | Vernejord |
Tilkobling til nett 230 V AC på kretskort
Kontroller slik at markeringen på kretskortet stemmer overens med kabelplasseringen på terminalen.
Styring av alarmgrense
Alarm for lav batterispenning i batteridrift kan styres.
Sikringer
Enhet | Sikringer | Type | Forklaring |
|---|---|---|---|
Samtlige | F1 | T2,5A | Elnettsikring |
ECO 24V 3A S | F2, F6 | T3A | Lastsikring + |
ECO 12V 5A S ECO 24V 5A M | F2, F6 | T5A | Lastsikring + |
ECO 12V 10A M ECO 24V 10A M | F2, F6 | T10A | Lastsikring + |
Samtlige | F7 | T16A | Batterisikring |
Advarsel for utskifting av sikringer (A)
Dersom det benyttes større sikringer enn det enheten leveres med, medfører dette en skaderisiko. Sikringens oppgave er å beskytte tilkoblet last og tilhørende lastkabler mot skade og brann. Det er ikke mulig å bytte til en større sikring for å øke strømuttaket.
Alarm som vises på skapdør / indikeringsdiode
I normalstilling viser indikeringsdioden et fast grønt lys.
![]() |
Indikeringsdioden viser | Forklaring |
|---|---|
Fast grønt lys | Normal drift. |
Fast rødt lys | Underspenning, lyser rødt ved nettavbrudd inntil batterispenningen synker under alarmgrensen. |
Ved idriftsatt system: Hvis indikeringsdioden er slukket, er dyputladingsbeskyttelsen aktivert.
Produktblad - Tekniske data
Produktblad / tekniske data

ECO S finnes for montering på vegg.

ECO M finnes for montering på vegg.
Tekniske spesifikasjoner
Disse tekniske spesifikasjonene kan endres uten varsel.
Navn, artikkelnummer og e-nummer
Navn | Artikkelnummer | E-nummer |
|---|---|---|
ECO 12V 10A M | ME01C10212P100 | 52 135 19 |
ECO 12V 5A S | SM01C10212P050 | 52 136 50 |
ECO 24V 10A M | ME01C10224P100 | 52 135 22 |
ECO 24V 3A S | SM01C10224P030 | 52 135 16 |
ECO 24V 5A M | ME01C10224P050 | 52 135 21 |
Om
ECO-serien er pålitelige og små batteribackup for bruk med tilgangssystemer, låsesystemer og andre belastninger. Batteriets sikkerhetskopier har kontrollert lading* som forhindrer at batteriene overlades, noe som forlenger levetiden betydelig.
Bruksområder
Brukes mest i:
Alarm
Enheten alarmerer for:
Underspenning/lav batterispenning.
Fast installasjon
Produktet er beregnet for fast installasjon. Installasjon skal utføres av autorisert installatør.
Test av batteribackup før installasjon av 230 V
Test, ”cold start” betyr at batteribackup-en kan idriftsettes med kun batteriene tilkoblet uten at batteribackup-en er koblet til 230 V. Dette er praktisk dersom montøren ikke er elektriker, men likevel ønsker å kunne teste systemet.
Regelverk og sertifiseringer
Krav som produktet oppfyller
EMC: | EMC-direktivet 2014/30EU |
El: | Lavspenningsdirektivet: 2014/35/EU |
CE: | CE-direktivet ifølge: 765/2008 |
Maskindirektivet | Produktet er en del av elektriske systemer, er underlagt relevante elektriske og sikkerhetsdirektiver og er ikke en maskin i henhold til maskindirektivet (2006/42/EF). |
Økodesign | Milletekniks produkter er beregnet for profesjonell bruk og er derfor ikke direkte omfattet av miljødesignforordningen (EU 2019/1782). Siden enkelte komponenter kan dekkes, avslører vi likevel relevant informasjon for å gi våre kunder tillit til deres valg |
Effektivitet (%)[a] | Standby-forbruk, typisk (W): | ||||||||||||||||||||||||||||||||||||||||||||||||
|---|---|---|---|---|---|---|---|---|---|---|---|---|---|---|---|---|---|---|---|---|---|---|---|---|---|---|---|---|---|---|---|---|---|---|---|---|---|---|---|---|---|---|---|---|---|---|---|---|---|
87% | 0,90 W | ||||||||||||||||||||||||||||||||||||||||||||||||
88% | 1,10 W | ||||||||||||||||||||||||||||||||||||||||||||||||
87% | 1,50 W | ||||||||||||||||||||||||||||||||||||||||||||||||
88% | 1,70 W | ||||||||||||||||||||||||||||||||||||||||||||||||
89% | 1,70 W | ||||||||||||||||||||||||||||||||||||||||||||||||
[a] Ved nominell belastning. | |||||||||||||||||||||||||||||||||||||||||||||||||


Forventet driftstid ved strømbrudd (nye batterier)
Systemspenning | Antall batterier | Batteritype | Last: 0,1 A | Last: 0,3 A | Last: 0,6 A | Last: 1 A | Last: 1,5 A | Last: 2 A |
|---|---|---|---|---|---|---|---|---|
12 V | 1 st. | 2,3 Ah | 12 h | 4 min | 2 h | 1 h | 40 min | 20 min |
12 V | 1 st. | 7,2 Ah | 42 h | 19 h | 10 h | 5 h | 3 h | 2 h |
24 V | 2 stk. | 2,3 Ah | 12 h | 4 h | 2 h | 1 h | 40 min | 20 min |
24 V | 2 stk. | 4,5 Ah | 24 h | 8 h | 4 h | 2 h | 1,5 h | 40 min |
Kretskort - Tekniske data
Tekniske data, hovedkort: CEO3 uP
Info | Forklaring |
|---|---|
Artikkelbetegnelse | CEO3-ECO |
Produktbeskrivelse | CEO 3 er neste generasjons kretskort for enklere batteribackup-er. Avanserte funksjoner som tidligere ikke var mulige i enklere batteribackup-er, er nå tilgjengelige som standardutførelse. CEO 3 er en driftssikker kjerne i enklere passersystemer, med færre komponenter enn tidligere, hvilket reduserer miljøpåvirkningen. |
Mål | 120 x 55 mm x 52 mm |
Egenforbruk | 50 mA |
Sikringer | Se tabell: Sikringer. |
Utganger | Utgang: to lastutganger som er prioriterte lastutganger (= alltid spenning). |
Sikring | Lastutgang: + med sikring, se tabell. |
Maks. last | Maks. last er 10 A per lastutgang (T2A er montert fra fabrikk) og kortets totale last må ikke overstige 16 A. |
Alarmutganger | Alarmutganger Sumalarm ved sikringsfeil, se indikering nedenfor. Alarm på potensialfri relékontakt. |
Alarm | Underspenning, lyser rødt ved strømbrudd inntil batterispenningen faller under alarmgrensen. |
Alarm via | Alarm på potensialfri relékontakt. Potensialfri veksling. Slutning CO/NO. |
Indikering | LED som viser driftsstatus, alarmer og feil. |
Styring av alarmgrense med JU2
Styring av alarmgrense
Alarm for lav batterispenning i batteridrift kan styres.
Sikringer
Enhet | Sikringer | Type | Forklaring |
|---|---|---|---|
Samtlige | F1 | T2,5A | Elnettsikring |
ECO 24V 3A S | F2, F6 | T3A | Lastsikring + |
ECO 12V 5A S ECO 24V 5A M | F2, F6 | T5A | Lastsikring + |
ECO 12V 10A M ECO 24V 10A M | F2, F6 | T10A | Lastsikring + |
Samtlige | F7 | T16A | Batterisikring |
Advarsel for utskifting av sikringer (A)
Dersom det benyttes større sikringer enn det enheten leveres med, medfører dette en skaderisiko. Sikringens oppgave er å beskytte tilkoblet last og tilhørende lastkabler mot skade og brann. Det er ikke mulig å bytte til en større sikring for å øke strømuttaket.
Nettaggregat
Nettaggregat - Tekniske data RS-75-12
Sitter i: |
|---|
ECO 12V 5A S |
Info | Forklaring |
|---|---|
Utspenning: | 13,6V |
Utflod | 0 A - 6 A |
Utspenning:, ripple | 120 mVp-p |
Overspenning | 13,8V - 16,2V |
Utspenning:sopplading, rippel/strømbegrensning | Mindre enn 0,6 Vp-p |
Virkningsgrad | 84,5 % |
Strømbegrensning | 110 % - 180 % |
Konstantspenning | +/- 1,0 % |
Reguleringsnøyaktighet | +/- 0,5 % |
Inngangsstrøm (230 V) | 1,2 A |
Nettspenningsfrekvens | 47 Hz - 63 Hz |
Nettspenning | 85 V AC - 264 V AC |
Merkeeffekt | 25,2 W |
Temperaturspenn | -30°C - +70°C |
Fuktighetsområde | 20% - 90% RH ikke-kondenserende |
Nettaggregat - Tekniske data LRS-150-12
Sitter i: |
|---|
ECO 12V 10A M |
Info | Forklaring |
|---|---|
Utspenning: | 13,6V |
Utflod | 0 A - 12,5 A |
Utspenning:, ripple | 150 mVp-p |
Overspenning | 13,8V - 16,2V |
Utspenning:sopplading, rippel/strømbegrensning | Mindre enn 0,6 Vp-p |
Virkningsgrad | 87,5 % |
Strømbegrensning | 110 % - 140 % |
Konstantspenning | +/- 0,5 % |
Reguleringsnøyaktighet | * / - 1,0 % |
Inngangsstrøm (230 V) | 1,7 A |
Nettspenningsfrekvens | 47 Hz - 63 Hz |
Nettspenning | 230 V AC - 240 V AC |
Merkeeffekt | 150W |
Temperaturspenn | -30°C - +70°C |
Fuktighetsområde | 20% - 90% RH ikke-kondenserende |
Nettaggregat - Tekniske data LRS-75-24
Sitter i: |
|---|
ECO 24V 3A S |
Info | Forklaring |
|---|---|
Utspenning: | 27,3V |
Utflod | 0 - 3,2 A |
Utspenning:, ripple | 150 mVp-p |
Overspenning | 28,8V - 33,6V |
Utspenning:sopplading, rippel/strømbegrensning | Mindre enn 0,6 Vp-p |
Virkningsgrad | 90 % |
Strømbegrensning | 110 % - 150 % |
Konstantspenning | +/- 1,0 % |
Reguleringsnøyaktighet | * / - 0,5 % |
Inngangsstrøm (230 V) | 0,85A |
Nettspenningsfrekvens | 47 Hz - 63 Hz |
Nettspenning | 85 V AC - 264 V AC |
Merkeeffekt | 76,8W |
Temperaturspenn | -30°C - +70°C |
Fuktighetsområde | 20% - 90% RH ikke-kondenserende |
Nettaggregat - Tekniske data LRS-150-24
Sitter i: |
|---|
ECO 24V 5A M |
Info | Forklaring |
|---|---|
Utspenning: | 27,3V |
Utgangsstrøm: | 0 A - 6,5 A |
Utspenning:, ripple | 200 mVp-p |
Overspenning | 28,8V - 33,6V |
Utspenning:sopplading, rippel/strømbegrensning | Mindre enn 0,6 Vp-p |
Virkningsgrad | 89 % |
Strømbegrensning | 110 % - 140 % |
Konstantspenning | +/- 0,5 % |
Reguleringsnøyaktighet | +/- 1,0 % |
Inngangsstrøm (230 V) | 1,7 A |
Nettspenningsfrekvens | 47 Hz - 63 Hz |
Nettspenning | 230 V AC - 240 V AC |
Merkeeffekt | 156 W |
Temperaturspenn | -30°C - +70°C |
Fuktighetsområde | 20% - 90% RH ikke-kondenserende |
Nettaggregat - Tekniske data RSP-320-24
Sitter i: |
|---|
ECO 24V 10A M |
Info | Forklaring |
|---|---|
Utspenning: | 27,3V |
Utflod | 0 A - 13,4 A |
Utspenning:, ripple | 150 mVp-p |
Overspenning | 27,6 V – 32,4 V |
Utspenning:sopplading, rippel/strømbegrensning | Mindre enn 1,2 Vp-p |
Virkningsgrad | 89 % |
Strømbegrensning | 105 % - 135 % |
Konstantspenning | +/- 0,5 % |
Reguleringsnøyaktighet | +/- 1,0 % |
Inngangsstrøm (230 V) | 2 A |
Nettspenningsfrekvens | 47 Hz - 63 Hz |
Nettspenning | 230 V AC - 240 V AC |
Merkeeffekt | 321,6W |
Temperaturspenn | -30°C - +70°C |
Fuktighetsområde | 20% - 90% RH ikke-kondenserende |
Tekniske data vedlegg
Tekniske data, kapsling
Info | Forklaring |
|---|---|
Navn | S |
Beskyttelsesklasse | IP 20 |
Mål | Høyde: 230 mm, Bredde: 216 mm, Dybde: 85 mm. |
Høydeenheter | - |
Montering | vegg |
Omgivelsestemperatur | +5 °C - +40 °C. For best mulig batterilevetid: +15 °C til +25 °C. |
Omgivelser | Miljøklasse 1, innendørs. 20 % ~ 90 % relativ fuktighet |
Materiale | Pulverlakkert stålplate |
Farge | Hvit |
Kabelinnføringer, antall | 3 |
Batterier som får plass i kapsling | 1 stk 12 V, 2,3 Ah. 2 stk 12 V, 2,3 Ah. 2 stk 12 V, 4,5 Ah. |
Vifte | Nei |
Tekniske data - Tekniske data M
Info | Forklaring |
|---|---|
Navn | M |
beskyttelseklasse | IP 20 |
Mål | Høyde: 272 mm, Bredde: 344 mm, Dybde: 115 mm. |
Høydeenheter | - |
Montering | vegg |
Omgivelsestemperatur | +5 °C - +40 °C. For best mulig batterilevetid: +15 °C til +25 °C. |
Miljø | Miljøklasse 1, innendørs. 20 % ~ 90 % relativ fuktighet |
Materiale | Pulverlakkert stålplate |
Farge | Hvit |
Kabelinnføringer, antall | 5 |
Batterier som passer | 2 stk 12 V 7,2 Ah. 2 stk 12 V 14 Ah. |
Vifte | Nr: 5 A, 12 V -24 V enheter. Ja: 10 A, 24 V enheter. |
Lenke til den nyeste informasjonen
Produkter er gjenstand for oppdateringer, og du finner alltid den siste informasjonen på vårt nettsted.
Garanti, kundestøtte, produksjonsland og opprinnelsesland
Garanti
Produktet har to års garanti, fra kjøpsdato (dersom annet ikke er avtalt). Kostnadsfri support under garantitiden nås på support@milleteknik.se eller telefon, 031-34 00 230. GodtFabrikatlse for reise- og eller arbeidstid i forbindelse med lokalisering av feil, installering av reparert eller utskiftet vare inngår ikke i garantien. Kontakt Milleteknik for mer informasjon. Milleteknik gir support under produktets levetid, dog maksimalt i 10 år etter kjøpsdato. Utskifting med likeverdig produkt kan forekomme hvis Milleteknik vurderer at reparasjon ikke er mulig. Kostnader for support kommer i tillegg etter at garantitiden har utløpt.
CE-merking
På hvert produkt finnes det en CE-etikett med informasjon om produktet og kontaktopplysninger til produsenten. Mangler du noe, eller trenger du mer informasjon, da skal du primært henvende deg til forhandler som også skal kunne svare på spørsmål om garanti og support. Du kan alltid henvende deg til produsenten hvis du har spørsmål om produktets ytelser.
![]() |
Kundestøtte
Trenger du hjelp til installasjon eller tilkobling?
Du finner svar på mange spørsmål på: www.milleteknik.se/support
Telefon: +46 (0)31- 340 02 30, e-post: support@milleteknik.se.
Kundestøttetelefonen er åpen 8.00–16.00 mandag til torsdag og 8.00–15.00 på fredager. Stengt 11.30–13.15.
Reservedeler
Kontakt kundestøtte om du har spørsmål om reservedeler.
Kundestøtte etter garantitiden
Milleteknik tilbyr kundestøtte i produktets levetid, begrenset oppad til ti år fra kjøpsdatoen. Et produkt kan bli erstattet med et likeverdig produkt dersom produsenten vurderer at reparasjon ikke er mulig. Når garantitiden er utløpt, vil det påløpe kostnader ved bruk av kundestøtte.
Spørsmål om produktytelse?
Telefon for salg: 031- 340 02 30, e-post: sales@milleteknik.se
Kontakt oss
Milleteknik AB
Ögärdesvägen 8 B
433 30 Lott
Sverige
+46 31-34 00 230
www.milleteknik.se
Produksjonsland
Sverige
Produsent
Utviklet og produsert av Milleteknik AB
Batterier
Batterier følger ikke med
Batterier selges separat.
2,3 Ah, 12 V AGM-batteri
Batteritype | V | Ah |
|---|---|---|
Vedlikeholdsfri AGM, blybatteri. | 12 V | 2,3 Ah |
Artikkelnummer | E-nummer | Artikkelnavn | Terminal | Mål. Høyde bredde dybde | Vekt per stk | Fabrikat |
|---|---|---|---|---|---|---|
MT113-12V02-01 | 5230578 | UPLUS 12V 2,3Ah 6+ Designlivsbatteri | Flatstift 4,8 mm | 60x178x35 mm | 1,0 kg | UPLUS |
4,5 Ah 12 V AGM batteri
Batteritype | V | Ah |
|---|---|---|
Vedlikeholdsfri AGM, blybatteri. | 12 V | 4,5 Ah |
Artikkelnummer | E-nummer | Arikkelnavn | Terminal | Mål. Høyde bredde dybde | Vekt per stk | Fabrikat |
|---|---|---|---|---|---|---|
MT113-12V04-01 | 5230577 | UPLUS 12V 4,5Ah 6+ Designlivsbatteri | Flatstift 4,8 mm | 107x90x70 mm | 1,5 kg | UPLUS |
Reserver driftstimer - oversikt
Tabellen viser forventet backupdriftstid ved ulike belastninger på batteribackupen.
Viktig
Dette er en veiledning og alle tider er omtrentlige og kan avvike fra faktiske tider. Belastning, temperatur og andre faktorer spiller en rolle, og det er derfor den nøyaktige tiden ikke kan gis.
Gjelder nye batterier.
Strømstyrke og batterier varierer med konfigurasjon, sjekk om konfigurasjonen kan håndtere batterier og strømstyrke.
Middels strøm | 14 Ah 2 stk 7,2 Ah batterier) | 28 Ah (2 stk 14 Ah batterier) | 40 Ah (2 stk. 20 Ah batterier) |
|---|---|---|---|
Laster | Reserver kjøretid (ca), minutter | ||
1 A | 485 | 970 | 1300 |
2 A | 380 | 560 | 810 |
4 A | 165 | 330 | 490 |
6 A | 120 | 245 | 360 |
8 A | 100 | 210 | 310 |
10 A | 80 | 160 | 240 |
Middels strøm | 7,2 Ah | 14 Ah | 28 Ah | 45 Ah |
|---|---|---|---|---|
Laster | Reserver driftstid (ca), minutter | |||
0,5 A | 450 | 820 | 1650 | 2350 |
1 A | 260 | 485 | 970 | 1460 |
2 A | 150 | 280 | 560 | 920 |
4 A | 90 | 165 | 335 | 550 |
6 A | 67 | 125 | 245 | 405 |
8 A | 57 | 105 | 210 | 350 |
10 A | 44 | 80 | 160 | 270 |
12 A | 38 | 70 | 140 | 235 |
14 A | 33 | 60 | 120 | 200 |
16 A | 28 | 50 | 100 | 170 |
18 A | 25 | 45 | 89 | 150 |
20 A | 23 | 42 | 84 | 142 |
Middels strøm | 28 Ah | 42 Ah | 65 Ah | 70 Ah |
|---|---|---|---|---|
- | 4 batterier (14 Ah) | 6 batterier (14 Ah) | 4 batterier (20 Ah + 45 Ah) | 10 batterier (7 Ah) |
Laster | Reserver driftstid (ca), minutter | |||
0,5 A | 1650 | 2090 | 5574 | 3440 |
1 A | 970 | 865 | 3252 | 2118 |
2 A | 560 | 815 | 1770 | 1329 |
4 A | 335 | 490 | 930 | 864 |
6 A | 245 | 360 | 600 | 605 |
8 A | 210 | 310 | 426 | 544 |
10 A | 160 | 240 | 342 | 414 |
12 A | 140 | 210 | 270 | 363 |
14 A | 120 | 180 | 234 | 311 |
16 A | 100 | 150 | 204 | 286 |
18 A | 90 | 130 | 150 | 254 |
20 A | 84 | 126 | 138 | 241 |
Med forbehold om skrivefeil.
Adresse og kontaktinformasjon
Milleteknik AB |
Ögärdesvägen 8 B |
S-433 30 Partille |
+46 31 340 02 30 |
www.milleteknik.se |
[1] Oversettelser på andre språk enn svensk er kun veiledende og ikke trygt gjennomgått. Oversettelse bør alltid kontrolleres mot den svenske originalen for å sikre nøyaktig informasjon










